Sonniger Rückzugsort im 1. Stock – 3-Zimmer mit Westbalkon und Weitblick
Empfehlen
Preise & Kosten
Angaben zur Immobilie
Lage
Die Wohnungen befindet sich im 1. Obergeschoss eines rückwärtigen Mehrfamlienhauses mit nur sechs Wohnungen im Mühlenviertel Obergnigl – einem Standort mit Geschichte und gewachsenem Wohnumfeld. Die hervorragende Lage am Fuße von Gaisberg und Heuberg ermöglicht Naturerlebnisse direkt vor der Haustür, während Altstadt, Bahnhof und Autobahnanschluss schnell erreichbar sind. Die Wohnung ist nach Westen ausgerichtet, was nicht nur für Licht und Sonne bis in den Abend sorgt, sondern auch für eine angenehme, gut belichtete Atmosphäre.
Objektbeschreibung
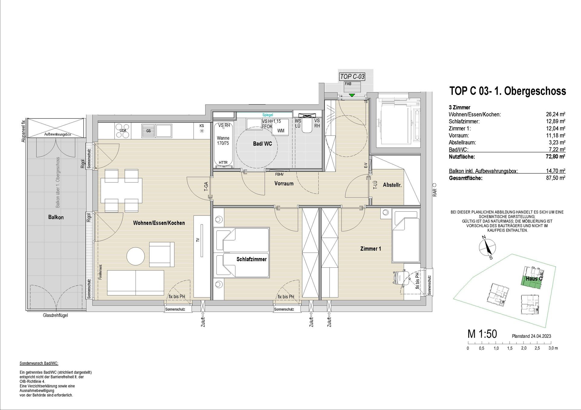
Diese 3-Zimmer-Wohnung im 1. Obergeschoss vereint durchdachte Architektur mit luftiger Wohnqualität. Besonders hervorzuheben ist der großzügige Wohn-/Ess-/Kochbereich mit direktem Zugang zum Westbalkon. Die Wohnung liegt erhöht und öffnet sich nach Westen mit herrlichem Blick ins begrünte Umfeld – ideal für alle, die nach Weite und Licht suchen. Im Edelrohbau angeboten, können Sie Materialien wie Bodenbeläge, Fliesen und Badausstattung individuell wählen. Eine hochwertige Standardausstattung ist im Kaufpreis enthalten, weitere Veredelungen sind auf Wunsch möglich. Zwei Schlafzimmer, ein geräumiger Vorraum, ein Abstellraum und ein elegantes Bad/WC vervollständigen das Raumangebot.
Ausstattung
Edelrohbau mit Wahlfreiheit bei Böden, Fliesen & Sanitärausstattung, die Standardausstattung (z. B. Eichenparkett, Designfliesen) sind im Kaufpreis inkludiert
Westbalkon mit praktischer Aufbewahrungsbox
Großzügiger Wohn-/Essbereich mit Weitblick
Fußbodenheizung mit nachhaltiger Pellets- und Photovoltaikversorgung
Lift von der Tiefgarage in alle Geschosse
Bedarfsgerechte Lüftungsanlage für modernes Raumklima
Funktionale Raumaufteilung mit zusätzlichem Abstellraum
€ 694.800
Kaufpreis3
Zimmer72,80 m²
WohnflächeAdresse
Salzburg
Kontaktanfrage
Ansprechpartner
MYSLIK Wohnbau Salzburg
Anbieter
Hans Myslik Betriebs GmbH
Karl-Emminger-Straße 15A
5020 Salzburg
Hans Myslik Betriebs GmbH